Nr projektu
A335
Powierzchnia
340 m²
Inwestor
prywatny
Projekt
2018
Realizacja
2024
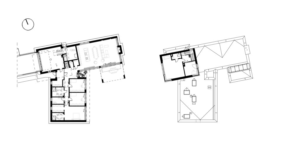
Dom jest zaprojektowany tak, aby harmonijnie wpisać się w otoczenie i otworzyć na piękną, zieloną działkę. Bryła budynku, rozłożysta i parterowa, tworzy prywatną przestrzeń, w której mieszkańcy mogą cieszyć się pełnym kontaktem z naturą.
Układ funkcjonalny wyraźnie dzieli strefy: dzienną, nocną oraz techniczną, co zapewnia wygodę i codzienny komfort użytkowania. Główne pomieszczenia zwrócone zostały w stronę ogrodu – duże przeszklenia nie tylko wprowadzają światło do wnętrz, ale także pozwalają podziwiać otaczającą zieleń przez cały rok.
Układ funkcjonalny wyraźnie dzieli strefy: dzienną, nocną oraz techniczną, co zapewnia wygodę i codzienny komfort użytkowania. Główne pomieszczenia zwrócone zostały w stronę ogrodu – duże przeszklenia nie tylko wprowadzają światło do wnętrz, ale także pozwalają podziwiać otaczającą zieleń przez cały rok.














