Po technicznych wpisach dotyczących budowy pojawiło się sporo pytań, np:
- O co chodzi z tymi skosami?
- Jak będzie wykończony beton?
- Pokaż projekt?
Dlatego dziś wreszcie z dawna obiecywany wpis o koncepcji domu. Przejdźmy przez to tak, jak robimy to z klientami w A8 Architektura.: Lokalizacja, zagospodarowanie, wielkość domu, funkcjonalność, rozwiązania techniczne, wygląd, koszty.
Działka i lokalizacja

Działki szukaliśmy równolegle dla trzech rodzin. Chcieliśmy zostać blisko Warszawy, ale jednocześnie mieć większy teren na rośliny i prywatność. Ostatecznie wybraliśmy działkę rolną 30 minut od miasta, którą właściciel podzielił na kilka mniejszych. Każda z rodzin kupiła po dwie działki po 1500 m².
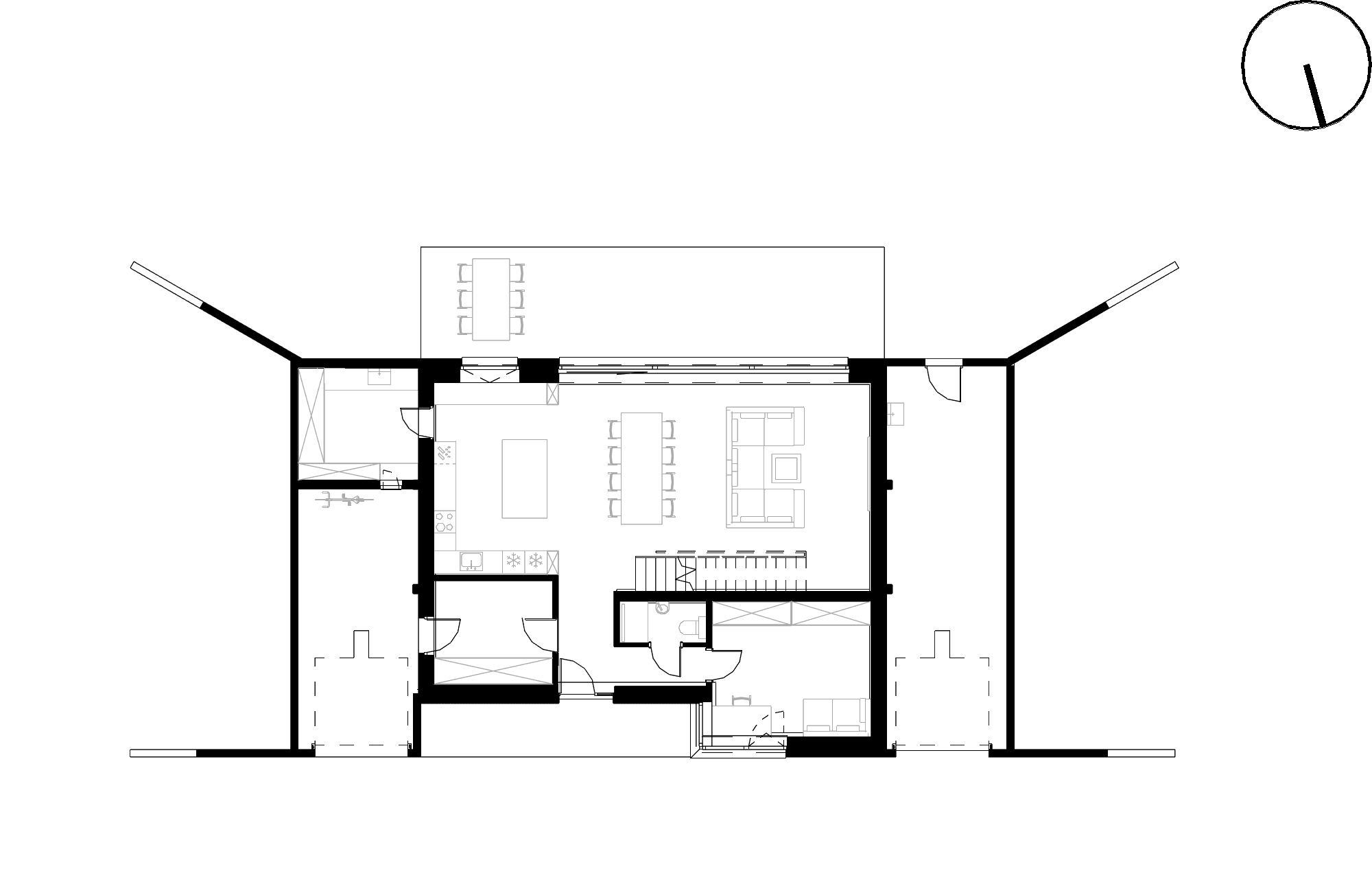
Dom ulokowałem w północnej części, tak aby garaż był ukryty i nie dominował widoku od wjazdu. Dzięki temu przed domem powstała szeroka otwarta przestrzeń. Główne pomieszczenia mogłem ustawić od południa, z dostępem do słońca przez cały dzień.
Działka była wcześniej mocno zaniedbana. Od początku sadzimy drzewa, krzewy i rośliny jadalne, licząc, że z czasem stanie się miejscem naturalnym również dla małych zwierząt.
Wielkość domu i funkcjonalność

W A8 Architektura projektujemy zwykle domy 200-400 m², choć trafiają się zarówno 100-metrowe, jak i rezydencje po 1700 m².
Dla siebie chcieliśmy podejść możliwie rozsądnie. Rzadko się o tym mówi, ale mniejszy dom jest po prostu bardziej ekologiczny. Jednak rodzina jest duża, pracujemy też częściowo z domu. Finalnie powierzchnia mieszkalna to około 200 m², a z dodatkowymi przestrzeniami technicznymi i poddaszem całość ma blisko 300 m².
Dom jest dopasowany do naszego trybu życia. Parter to duża strefa dzienna z ogromnym oknem na południe. Kuchnia bardzo wygodna, ma dużą spiżarnię z naturalnym chłodem dzięki zasypaniu ziemią – życzenie mojej żony, która lubi gotować.
Pracujemy częściowo zdalnie, więc potrzebne dwa były gabinety. Garaż jest tylko jeden, drugi traktujemy jako rezerwę. Na piętrze znajdują się trzy sypialnie z południową ekspozycją i widokiem na ogród. Okna są duże, na życzenie córki, która bardzo lubi słońce. Oboje dzieci mają duże pokoje, gdzie mogą uczyć się, odpoczywać, zapraszać gości.
Plan miejscowy narzucał dachy skośne. Wykorzystaliśmy to, tworząc dodatkową przestrzeń na poddaszu. To może być miejsce sportowe, magazynowe albo pokój z ping-pongiem, co testujemy jako pierwsze.
Ze względu na wysoki poziom wód gruntowych nie mogliśmy zrobić piwnicy. Zamiast niej powstało pomieszczenie gospodarcze zasypane ziemią, również z naturalnym mikroklimatem.
Dzieci są już duże. Nie zakładamy, że będą mieszkać z nami długo, ale chcemy, żeby miały miejsce, do którego będą mogły wracać, również z partnerami. Od południa zaplanowaliśmy duży taras z możliwością zadaszenia markizami. Lekkie wygięcia ściany betonowej osłaniają taras przed wiatrem ale nie zasłaniają słońca.
Rozwiązania techniczne

Wraz z żoną, chcemy, żeby dom był możliwie niezależny energetycznie. Najważniejsze elementy naszej instalacji:
- gruntowa pompa ciepła – jedno z najlepszych rozwiązań, zwłaszcza gdy nie ma gazu,
- wentylacja mechaniczna z odzyskiem ciepła i filtrem HEPA – daje bardzo dobrą jakość powietrza w domu,
- pomieszczenia techniczne przysypane ziemią – pełnią funkcję naturalnej izolacji, temperatura w nich zimą praktycznie nie spada poniżej zera, więc pomagają też w bilansie energetycznym domu,
- fotowoltaika – wybrałem wstępnie system Solroof zintegrowany z dachem ze względu na estetykę; uzupełniony o magazyn energii daje dużą niezależność i idealnie współpracuje z pompą ciepła,
- instalacja szarej wody – oszczędność i racjonalne wykorzystanie zasobów,
- automatyka domu – analizujemy możliwości, będzie o tym osobny wpis na etapie wnętrz,
- żaluzje zewnętrzne – najlepsza ochrona przed słońcem. Podkreślam: żaluzje, nie rolety.
Wygląd

Zależało nam, aby dom wyglądał tak, jakby stał tu od zawsze. Zieleń z czasem otuli go naturalnie.
Skośny dach wynika z planu miejscowego, ale dobrze wpisuje się w charakter sąsiedniej zabudowy.
Duże przeszklenia od południa poprawiają bilans energetyczny. Od północy okna są małe, za wyjątkiem narożnego okna w moim gabinecie, które pełni rolę „centrum dowodzenia”.
W A8 unikamy materiałów udających inne. Drewno, kamień, beton, metal, szkło – te naturalne materiały są na elewacji. Będą też powtórzone we wnętrzach. Nie ma tu miejsca na plastikowe okładziny czy inne formy imitacji.
Część elewacji wykonana będzie z niskoemisyjnego betonu architektonicznego. To jednocześnie konstrukcja skarp i walor estetyczny. Architekci mają słabość do betonu. My dodatkowo chcemy, aby porósł go bluszcz i inne pnącza.
Tak AI widzi pnącza na naszym domu – przyznam, że całkiem blisko mojej wizji.

Finanse i realne koszty budowy
Wielu z Was pyta również o koszty. Od początku prowadzę dokładne zestawienia. Koszty inwestycji za 1m kw. zbliżone są do średniej moich klientów. W tej chwili wylicznia wyglądają tak.
- Stan surowy: 918 120 zł
- Stan deweloperski (bez dachu zielonego): 660 473 zł
- Okna: 145 800 zł
- Dach solarny: 98 820 zł
- Magazyn energii: 43 200 zł
- Pompa ciepła gruntowa: 108 000 zł
- Ogród, zagospodarowanie terenu (częściowo własne wykonanie): 172 200 zł
- Zielony dach (częściowo własne wykonanie): 54 000 zł
- Wnętrza (w tym rozwiązania inteligentne): 993 000 zł
Całość budynku do stanu deweloperskiego to obecnie kwota około 2 mln zł brutto. Natomiast wszystkie koszty, wraz z zakupem działki, ogrodem, wnętrzami to około 3,5 mln zł brutto (z uwzględnieniem rezerwy 10 proc., którą warto przewidzieć przy budowie). To oczywiście aktualne szacunki a w trakcie budowy część kosztów jeszcze się zmieni, o czym będę opowiadał w kolejnych wpisach.
Podsumowanie
Jak napisał Jacek Piekara: „Architekt musi godzić wodę z ogniem w sposób tak kunsztowny, by samemu się nie poparzyć”. Robimy to na co dzień w A8. Teraz również w mojej własnej budowie.
WIosna na budowie i prace idą szybko, dlatego wkrótce kolejne wpisy.
arch. Piotr Lewandowski